BAUUNTERNEHMEN MARCO FRIEDRICH GmbH

Einfamilienhaus CYNTHIA

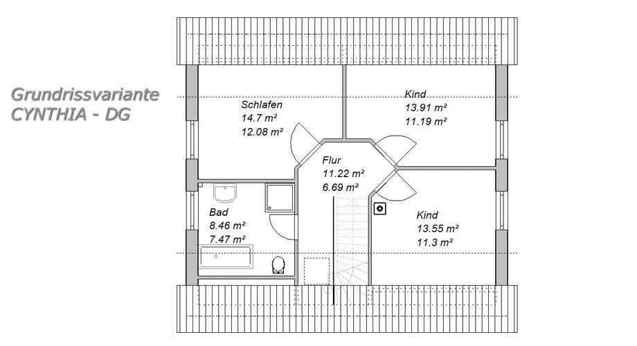
Grundrissvarianten

Bauunternehmen Marco Friedrich GmbH Bauunternehmen Marco Friedrich GmbH
Bauunternehmen Marco Friedrich GmbH Bauunternehmen Marco Friedrich GmbH
Bauunternehmen Marco Friedrich GmbH Bauunternehmen Marco Friedrich GmbH
Bauunternehmen Marco Friedrich GmbH Bauunternehmen Marco Friedrich GmbH
Bauunternehmen Marco Friedrich GmbH Bauunternehmen Marco Friedrich GmbH

Alle Grundrisse sind Gestaltungsvorschläge. Ihr Haus wird ganz individuell für Sie geplant.